キッチンから家族を見渡せる広々リビングの家|マンションリノベーション
-


- キッチンが開放的になったことで、家族が集まるリビングが広々気持ち良い空間になりました。
-


- キッチンから見たリビング。家族の様子がよく見えて安心です。
-


- キッチン周りの壁は奥さまのこだわりのタイルで仕上げました。
-


- キッチンの奥には、ストックがないと心配な奥さまも安心の大容量パントリー。
-


- キッチン腰壁につくった収納の一部をオープンにして、わんちゃんのトイレスペースに。
-


- リビングに入って正面に大きな窓が2つ。明るく抜け感があり、広さを感じられます。
-


- ご主人さまの書斎。本棚も造作して、ご要望通りの格好良い空間になりました。
-


- 廊下と寝室から回遊できる、ファミリークローゼット。
-


- 寝室はTVを壁掛けに。ちょうど良い高さで見れて、TV台がないので通路にも邪魔になりません。
-


- 玄関土間。奥の土間収納は、正面からは中の物が見えないようになっているのでスッキリ。
-


- アウトドア用品や、ベビーカーも入ってそのまま置くことができる土間収納。
-


- 玄関の飾り棚。カギや印鑑、お気に入りの物を置いておける便利なスペースです。
-


- こだわりの造作洗面台。わんちゃんの足を洗いやすい実験台シンクを使い、ミラーとタオル掛けは施主支給です。
-


- キャビネット付きトイレ。タンクが隠せて、掃除用具などもしまえるのでスッキリです。
-


- クロスの下にマグネット下地を入れて、メモやカレンダーを貼れるように。
-


- 奥さまの大好きなムーミンのクロス。
-


- リノベーション前の、壁に囲われたキッチン。
-


- リビングからキッチンは全く見えませんでした。
たくさんの収納と、在宅勤務用の部屋がほしい
110㎡の広々とした中古マンションを購入されたK様ご家族。子どもと愛犬と一緒に快適に暮らすためのリノベーションを依頼されました。
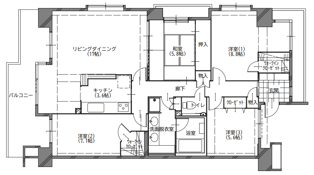
閉鎖的だったキッチンを開放的な対面キッチンにしたいとのご要望でしたが、構造上キッチンの位置を移動することができず・・・
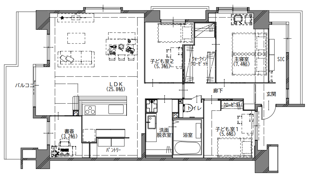
そこで、キッチンの配置は向きだけ変えてそのままに、キッチンに合わせて周りの間取りを変更することで対面キッチンを実現!
こうしたことで、子どもたちを見渡しながら安心してキッチンに立てるようになりました。
1番結露のひどかった北側のL型の窓は寝室の中に入らないように、あえて部屋の形を変えて、そこに土間収納をつくりました。
子ども部屋は必要以上に広くはせず、その分ファミリークローゼット、キッチン奥のパントリー、土間続きのシューズクローク、と各場所に必要なものを十分にしまえる収納をつくりました。
週2日在宅勤務のご主人さまのための書斎は、気持ちよく仕事できるよう狭くても南側の窓がある場所に。趣味のギターが似合う格好いい部屋にするため、フローリングもリビングとは違うものを採用しました。
奥さまの大好きなタイルやムーミンのクロス、わんちゃんのための滑りにくいフローリングなど、内装材も家族が家を好きになるようなものを選びました。
リノベーション情報
- DATA/
- 家族構成 :
- ご主人さま(40代)、奥さま(30代)、長女(1歳)、次女(妊娠中)
- 築年数 :
- 23年
- 施工面積 :
- 110㎡
- 施工金額 :
- 1150万円
- 工期 :
- 3か月
- #マンション
- #90㎡以上
- #個室こども部屋
- #ファミリークローゼット
- #ワークスペース






■スタッフコメント 完工後に伺った際、お子さまとわんちゃんがリビングや廊下を楽しそうに走っていたのが印象的でした。 打合せのときに「リノベーションでこんなに間取りを変えられると思わなかった、注文住宅みたいですね」と言っていただき、リノベーションを楽しんでいただけたことが嬉しかったです。