大好きな家具屋の世界感で暮らす|マンションリノベーション
-


- 大好きなTRUK furnitureの家具を活かせる世界感を形に。落ち着いたトーンの深緑の黒板塗装も、こだわりのひとつ。
-


- 天井は躯体表しで配線のダクトもあえて見せています
-


- 材木と有孔ボードで造作した間仕切り。実は床と天井で突っ張っているだけなので、動かすことができます。
-


- クローゼットの壁はあえて少し高さを低めにして、圧迫感がないようにしています
-


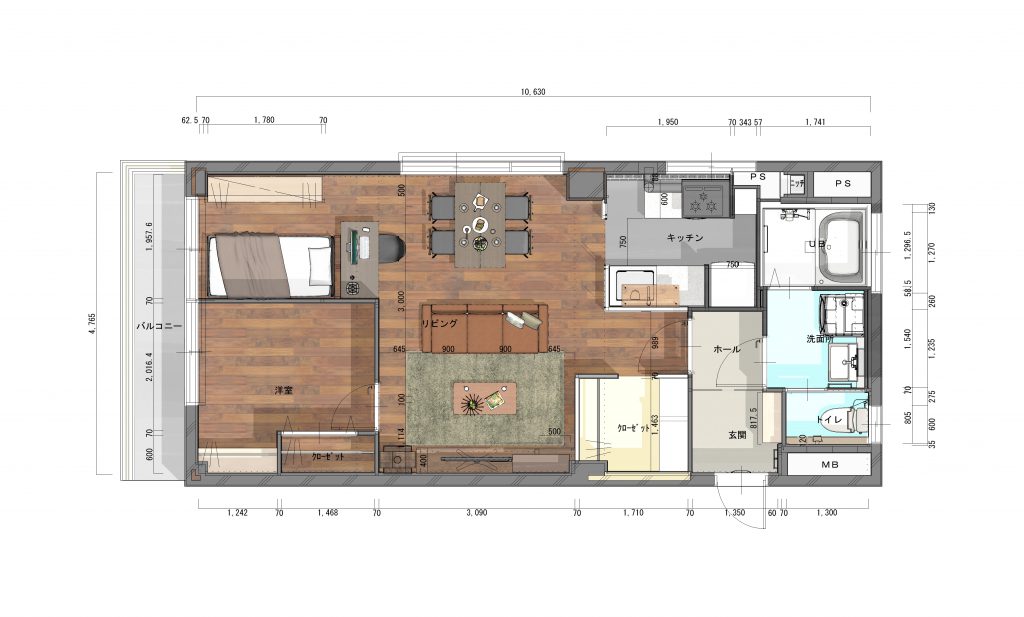
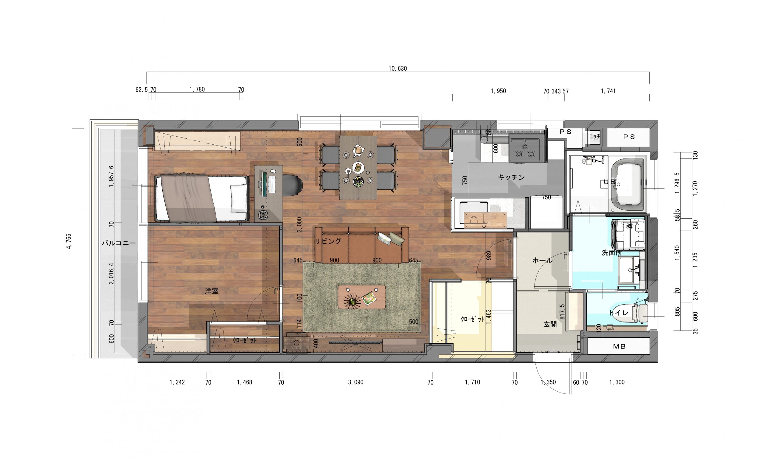
- リビングの一角にウォークインクローゼットを設けました。愛猫のご飯から洋服までしまえる大収納です。
-


- 少スペースで使い勝手良くするための2列型キッチン。リビングを広く使えます。
-


- 黒いタイルとむき出しのダクトで、スタイリッシュで引き締まった印象に。
-


-


- キッチンとリビングの床の見切りは真鍮をセレクト。細かいところまでこだわれるのがリノベーションの醍醐味です。
-


- 土間と廊下は左官仕上げ。リビングの無垢の扉との相性も抜群。
-


- 実験シンクに水栓・タイル・小物を合わせておしゃれな空間になった洗面室
-


- アクセントの黄色が映える遊び心のあるトイレ
-


-


- 愛猫ちゃんも大満足です
ソファが主役のすまいに
自分らしい暮らしがしたいと物件を探していたところフルスケルトン(天井も壁も解体された状態)の中古物件を見つけられたK様。
家具屋さんの「TRUK furniture」がお好きで、そのアイテムを活かせる世界観を形にしたいとのご要望でした。
無垢の杉フローリング、長尺シート、黒板塗装、タイルなどの内装から、床の見切り材やスイッチコンセントのプレートまでこだわり抜きました。






■担当者の一言 お客様自身の「こうしたい」というイメージをいかにかなえられるか。と考えがらリフォームの打ち合わせを進めていきました。イメージを形にするのは大変ですが、出来上がった時の感動も大きいです!