働くママの家事楽なおうち|戸建てリノベーション
-


- 木のぬくもりあふれるリビング。天井の羽目板でゆるりと空間を分けています。
-


- 掃き出しサッシと天窓で明るい室内に。
-


- 構造上残ってしまった柱も飾り棚にして良いアクセントに。
-


- キッチンの裏の階段下に洗濯機を設置。
-


- 洗濯機スペース隣にはファミリークローゼット。
-


- ファミリークローゼットから洗面室へ。
-


- リビングにはガス乾燥機も設置。収納下部は掃除道具も収められる用に計画してあります。働くママの強い味方です。
-


- 広いカウンターと全面鏡の洗面台。ファミリークローゼットと繋がっているので着替え~お化粧までが短い動線で整います。ハイサイドに設置した窓でプライバシーを考慮しつつ明るい空間に。
-


- ダイニングの一角に設けたワークカウンター。袖壁で隠した可動棚には書類やお薬などの日用品をまとめて。カウンター下にはプリンター置き場とルンバのお家を作りました。
-


- キッチンから目の届く日当たりの良い場所をキッズコーナーにお部屋のくぼみの部分を工夫して作られた奥様のアイディア空間です。
-


- 扉のついた玄関収納とオープン収納を組合せました。帰ってきたらすぐに手洗いできる様洗面所への入り口を設置。
-


- 階段上に設けた大きな窓から日が降り注ぐ廊下。
-


- 奥にはベランダに続く勝手口。廊下は室内物干しスペースも兼ねています。
-


- 将来2部屋にできる子供室。クローゼットはお子様が使いやすいようあえてオープンにしてあります。
-


- 和洋折衷の寝室。ご夫婦のセンスで素敵な空間になりました。
-


- 奥様のアイディアを元に作成。数本づつ掛けられるので選びやすくなったとご主人。
-


新築同様の住まいを目指して
奥様のご親戚のおうちが空き家になりお子様の誕生を期に移住を検討されました。
新築も検討しましたが、再建築不可な敷地だったため、新築同様のリノベーションを行いました。
築54年ということで現在の建物の仕様に合せるため、耐震補強、断熱処理、結露対策をしっかり行い外装も一新。四方を建物に囲まれていて日当たりもご心配されていた為、天窓を設け日当たりにも考慮しました。
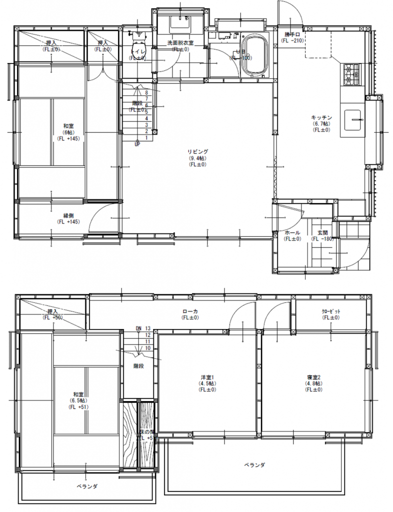
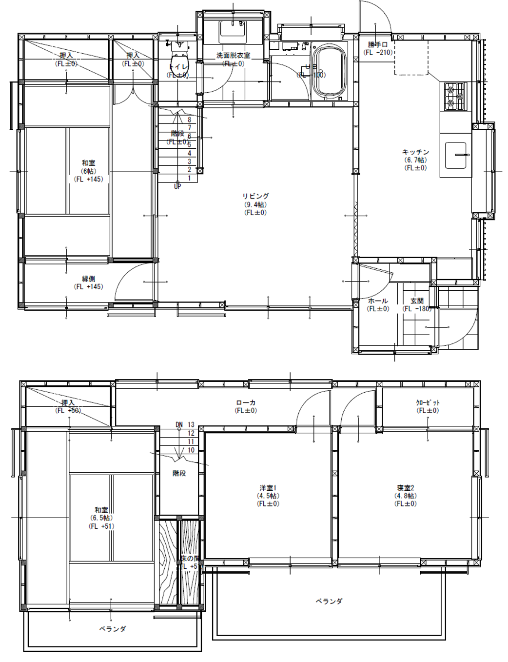
間取りに関してはフルタイムで働いている奥様のご要望が詰まった家事楽な空間に。
キッチン⇔洗濯機⇔ファミリークローゼット⇔脱衣室⇔乾燥機
と、家事にまつわる場所全てを繋ぐ回遊動線を叶えました。
適材適所に収納をもうけ忙しい毎日の中でもストレスなく家事を行える理想的な空間になりました。














■担当者の一言 奥様の祖父母宅の物件でしたが、とても良い環境でした。 初めてお話した時に頂いた要望書がとても細かく書かれていたので、奥様の望む住まいの実現のためにはどうしたらよいだろう。という事を念頭にプランニングしました。 耐震補強、断熱などハード面の問題もクリアしながら、既存の抜けない柱の扱い方や回遊動線の作り方など生活に密着した間取りのご提案など私自身もとても勉強になりました。 特に収納は綿密に計画。なにをどこにどのよう収納するというところまで細かく話し合いました。 出来上がったおうちにお伺いしたときに計画通りに収納されているクローゼットをみた時 『よかったぁ』と『すごい』の気持ちでいっぱいになりました。 細かい場所も奥様とアイディアを出し合い一緒に作り上げ、思い出深い空間ができたと思います。