ミニマルで開放的な暮らしを叶える家|マンションリノベーション


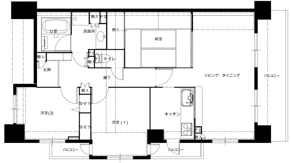
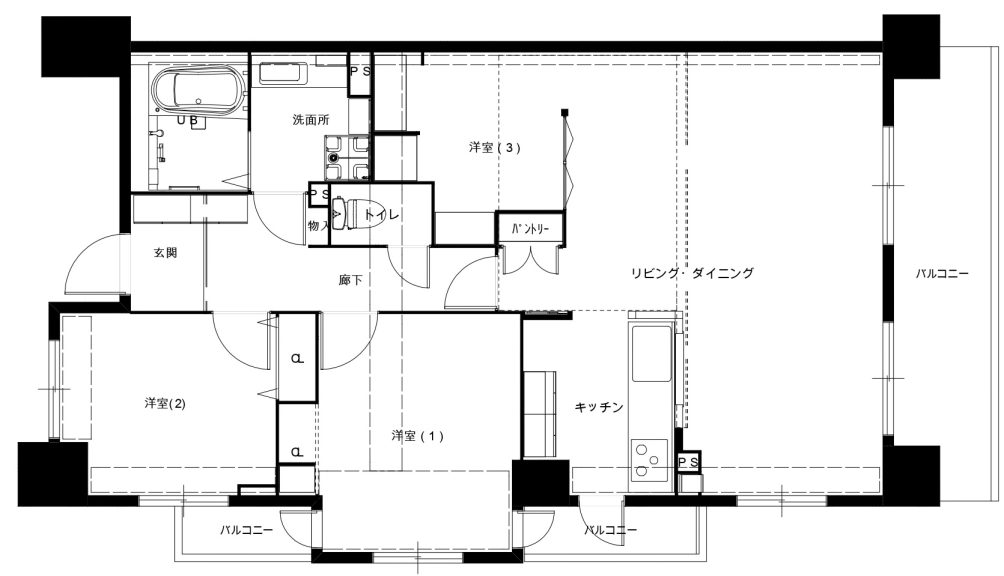
お子様の成長に伴い、同じ市内にマンションを購入されたMさま。使い勝手の良い広々としたリビングと、ミニマルな暮らしに合わせた適材適所の収納を叶えるお家になりました。
WAKATTEポイント 1
定位置をつくる収納が暮らしやすさの秘訣








生活動線をイメージしながら、奥様と収納プランを計画しました。玄関周りは、マスクや除菌グッズ、ハンカチやティッシュなど、コロナ禍で必要な物が増えましたが、それぞれの定位置をしっかり確保。キッチン横のリビング収納には、ルンバの充電器基地の他に、ルーターや掃除機がぴったり入るような可動棚を。シチュエーションに合わせたコンセントの位置など、暮らしにフィットする収棚を設計しました。戻す場所が決まっているから、片付けもらくらく。撮影でお伺いしたときも、スッキリと片づけられた心地よい暮らしを保っていらっしゃいました。
WAKATTEポイント 2
広々と、だけど間延びはしない工夫








リビングは和室を取り込んで、より広々とした空間に。室内窓をつけて半個室化した空間は奥様のスペース。ゆるやかな区切りが生まれ、リビングに間延び感のない奥行きが生まれました。こだわったのは木の柱。お子様の成長記録を刻んでいく、この家のシンボル的な存在になりました。間接照明で過ごす夜の雰囲気も最高です。
WAKATTEポイント 3
理想のイメージを叶えるクロスのセレクト








キッチンはマンションの構造上動かせなかったため、位置はそのままですが、吊戸を撤去したことで見通しが良くなりリビングと一体化。天井を木目のクロスにすることで、ナチュラルな区切りがうまれ、心地よい空間に。クロスの選択や見せる収納の使い方などMさまのセンス溢れる素敵な空間になりました。
子どもの成長をのびのびと見届けられる理想の暮らしへ
お打ち合わせの中で、ミニマルな生活を心がけていらっしゃること、お子さまにのびのび過ごせる空間を作ってあげたい、という気持ちをうかがい、収納は量よりも内容と場所を、リビングは開放感を大切にしながらも間延びしない空間を意識してプランのご提案をしました。リビングにある半個室のお部屋も、室内窓を作ることで明るさを取り込み、家族の存在も感じられる空間に。室内窓から見えるクローゼットのハリネズミのアクセントクロスは奥様が特にお気に入りで、あえて見せる収納を楽しんでいるそうです。














◾️スタッフコメント
お子様目線の住まいづくりや物の置き場を考えた収納計画など新しい住まいをとことん考えて打ち合わせに臨んでくださった奥様。そのかいあって物の定位置がしっかり決まったスッキリしたお住いが出来上がりました。内装材のチョイスも素敵で、特に廊下の木目クロスの天井はとても良いアクセントになっていて素敵な仕上がりです。