2023.1.28
リノベアイデア


60㎡以下のマンションでも、リノベーションをすれば家族の要望を叶えて住みやすい家にすることができます。WAKATTEは「家事をしやすくしたい」「子供部屋をつくってあげたい」というご相談をいただくことが多いです。
この記事では、実例を元に、60㎡以下のマンションでどのようにお客さまのご要望を叶えたかをご紹介していきます。
目 次
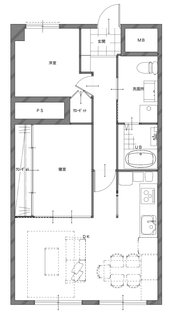
築年数や面積などに不安があり、購入を迷っているタイミングでご連絡をいただきました。色々お話しをする中でご購入を決意され、 ご出産までに全ての打ち合わせを終えられるようにスケジュールを決めていきました。
52㎡と限られた面積の上に、間取りを大きく変更することが難しい構造でした。
▼before


元々は壁付けだったキッチン。お子様を見守りながらキッチンに立てるよう対面キッチンにしたいけど、幅が狭すぎるという問題が…
そこで、2列型キッチンを提案させていただきました。


キッチンの間を通路にする割り切ったプランですが、小スペースで対面にでき、作業スペースを広くとれたり、シンク側・コンロ側それぞれで作業ができるので、夫婦一緒にキッチンに立ったり、将来お子様と一緒にお料理もしやすいです。
リビングの隣の洋室は、普段は引戸を開けっ放しにしてリビング続きのプレイスペースとして使用しています。しばらくの間はリビングを明るく広々と使用し、いずれはお子様の個室として使えるように設計しました。


詳しくは施工事例ページもご覧ください。




長男に部屋を与えたいと思った事をきっかけに、住まいの見直しを始めたCさま。
最初は新築で検討されましたが、住み慣れたところでリフォームをするのが良いのではないかと思いリノベーションを決意されました。
▼before


『個室はあるけど家族が集う空間』をコンセプトに、ご家族の個人のご要望を大切にしながらもくつろげるリビングスペースを確保した、バランスの良いプランをご提案。
子供部屋は1部屋ごとは狭くても使いやすくするため、造作のロフトベッドをご提案。




ロフトへの昇り降りはハシゴではなく階段にしましたが、階段の一部を塞がずに収納にするなど、空間を有効活用する工夫を詰め込みました。


キッチンは向きを90度変えて2列型にしました。シンク側の幅は少し短く135㎝に。縮めてスペースが出来たことで、ダイニングテーブルを横付けしたストレートダイニングにすることができました。配膳・片付けが楽になります。


詳しくは施工事例ページもご覧ください。




こちらはWAKATTEスタッフの自宅。子供たちの要望により、2回目の自宅リノベーションをしました。限られた範囲の中で子供2人の個室の確保、家事動線の向上を念頭にプランニングしました。
▼before


マンションですが、天井の高さを高く確保できた為、各3畳ほどの子供部屋は造作のロフトベッドを作ることで空間を効率よく活用しました。


リビング・ダイニングは縦長の空間を意識して、入り口から一番奥の窓まで視界が開けるようにしています。LDK合わせて15畳ほど。


詳しくは施工事例ページもご覧ください。




60㎡以下のマンションでも、WAKATTEなら空間を有効活用するご提案をさせていただきます。ご自宅の狭さや使い勝手にお悩みであれば、ぜひ一度お問い合わせください。
お問い合わせはこちら