2021.1.10
家づくりのこと


大手ポータルサイトで希望条件や住みたいエリアを入力し中古マンションを探していると、
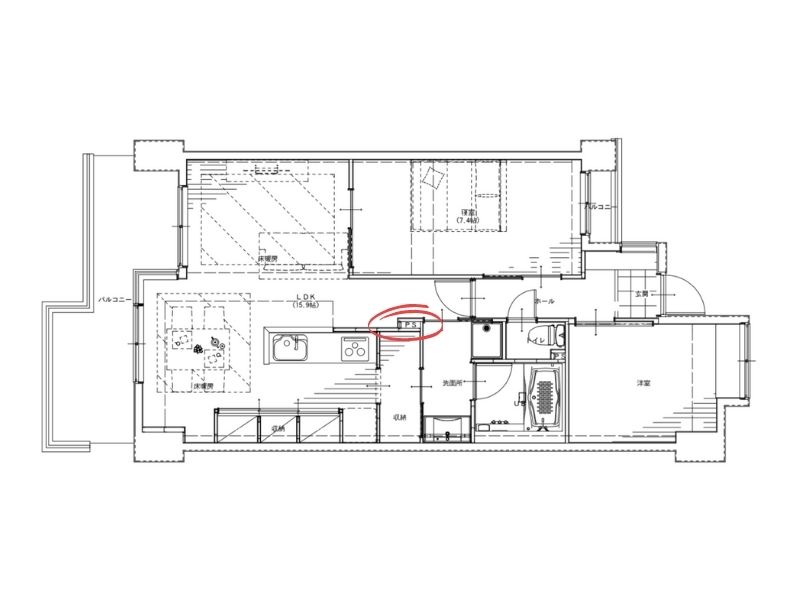
・図面に書いてある「PS」ってなんだろう?
・間取りの良し悪しが分からない!
・実際に内覧したときに確認するべきことってなに?
など、分からないことや疑問がいくつか湧いてきませんか?
この記事では、建築用語の説明や実際に現地(マンション)を内覧した際に確認すべきことをお伝えしていきます。
PS(パイプスペース)とは、上下水道の給排水管やガス管の配管スペースのことを指します。
PSはマンションの最上階から最下階まで通っているケースが多く、動かすことが出来ません。


そのため、中古マンションを購入してリノベーションをする際には注意が必要です。
キッチンやお風呂の位置を動かせてもPSを動かすことが出来ず、既存の場所に残すしかありません。新築マンションの場合でも、将来的にリフォームをすることを考えて、PSの位置を把握することが大切です。
建物構造上大切な「梁(はり)」は、戸建て・マンションに関わらず動かすことは出来ません。




中古マンションの梁は図面を見ているだけでは判断出来ず、実際に内覧をした際に確認することが大切です。
梁があることで圧迫感はないか、空間が狭く感じないか実際に体感しましょう。
GL工法とは、GLボンドという接着剤を使って壁を作る工事方法のことです。
躯体であるコンクリート面にGLボンドを団子上に設置していき、その上に石膏ボードを貼り付けていきます。
こちらが実際に中古マンションを解体した写真です。壁に白く残っているのがGLボンドになります。


GL工法のメリット・デメリットについて後半で詳しく説明していきます。
PS・梁・GL工法について説明をしてきました。ここからは動かすことが出来ないPSと梁の活かし方や、GL工法の注意点についてお話していきます。
動かすことができないPSと梁にも活かし方があります!具体的な事例を上げながらご説明していきます。


こちらはどうしても動かすことができない共有部分のPSに、モザイクガラスを使って装飾を施しLDKのアクセントとして活用した事例です。
お施主様の趣味である額装を飾ることで厄介者のPSがお気に入りのインテリアへと生まれ変わりました。


こちらは、天井の一部を間接照明を組み込めるように造作しました。中央に梁が通っていることで天井が2分割されていて、右と左で異なった雰囲気を作り出すことが出来ます。
GL工法について前半でご説明しましたが、具体的にメリット・デメリットを書き出してみました。
【メリット】
・コンクリートの精度が悪くても隠せる
・壁厚があまり厚くならない
【デメリット】
・結露によるカビの発生
今回はデメリットである「結露によるカビの発生」についてご説明します。現在マンションにお住まいの方には、結露によるカビの発生で壁紙が傷んでいたり、空気環境が悪くなったり悩まされている方も多いのではないでしょうか?
実はGL工法は、ボンドとボンドの間に隙間が生じています。そのため冷たい外気と部屋の温かい空気の温度差で、部屋の内側に結露が起きてしまいます。これを防ぐためにはリノベーションの際に「断熱材」の工事をすることをおすすめします。
断熱材には、発泡スチロールのような板状の断熱材と泡のような吹付け式の断熱材があります。外気に触れる壁がどのくらいあるかで、断熱工事の費用や工期が変わりますので、中古マンションを内覧する際には要チェックです。
「PS」「GL」「梁」についての説明とその注意点についてご説明してきました。
中古マンションを購入する前に確認すべきことなどお伝え出来たかと思いますが、実際に図面を見て詳しく説明が聞きたい、購入前の物件へ一緒に内覧に行ってほしいなどありましたらお気軽にお問い合わせ下さい!
お客様の理想とする生活を実現するために、WAKATTEスタッフがお手伝いさせていただきます。
ここまで読んでいただきありがとうございます!
資料は無料でお送りしていますので、下記よりお気軽にお申し込みください。